A Path to Wellness and Nature in Modern Homes
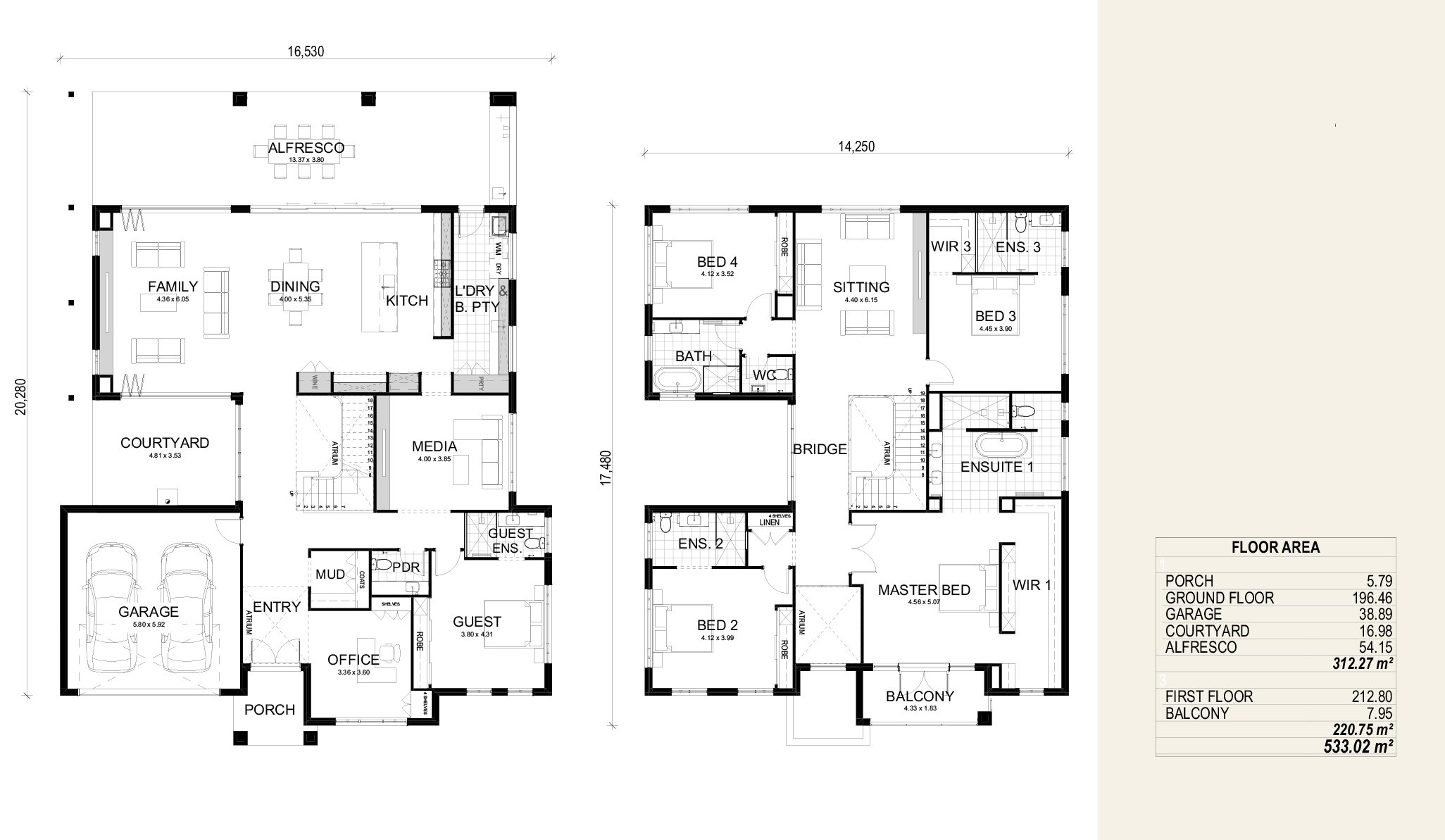
Internal courtyards have been a popular architectural feature for thousands of years and today these spaces are making a comeback for the exact reasons that made them popular in the past.
The Return of Internal Courtyards in Modern Homes
In the fast-paced world we live in, homeowners are looking for ways to incorporate balance, wellness, and sustainability into their living spaces. One architectural feature that is making a comeback in modern homes is internal courtyards. These courtyards not only add a touch of nature to urban living but also offer a green space where residents can escape and connect with nature.

Discover The Santorini by Hall & Hart
The Benefits of Internal Courtyards
Internal courtyards can serve multiple purposes, from a quiet refuge to a spacious area for family entertaining. They can be covered, semi-covered, or have an adjustable roof and are surrounded by windows, walls or screens. But their benefits go beyond aesthetics.
One of the most significant advantages of internal courtyards is that they bring in natural light, reducing lighting costs, and promoting passive cooling, making them eco-efficient. The natural light that enters a home through an internal courtyard can also improve the quality of indoor lighting and make the space feel more spacious and open.
Internal courtyards can also moderate the temperature of a building, reduce the overall temperature, promote cross ventilation, and reduce the need for artificial cooling.
Discover The Mediterranean Floor Plan by Hall & Hart
Designing Internal Courtyards
Designers and architects can design internal courtyards that blend seamlessly with the surrounding spaces of the house, providing a calming and peaceful atmosphere throughout the home. As a practical alternative to the traditional Australian backyard, internal courtyards provide an extension of the outdoors bringing light, fresh air, and plants into the central area of the house.
-
Creating a Calming Escape and Engaging Spaces
To make the most of an internal courtyard, it's essential to determine its purpose from the outset. From a small tranquil escape to a spacious area for family entertaining, one must consider the available space and desired use for this central part of the home. -
Small Courtyards as Natural Focal Points
For limited space, a small courtyard can be a calming natural focal point that brings light, fresh air, and plant life into the heart of the home. It provides an oasis of tranquillity that contrasts the outside world, making it a perfect place to relax and unwind. This style of design, known as biophilic design, is becoming increasingly popular as research shows the connection between people and nature.

Discover The Tuscany by Hall & Hart
-
Large Courtyards as Extensions of Living Space
For larger homes, a central courtyard can become an extension of the living space, offering a place for entertaining, relaxing, and secure play for children. It provides an open-air area that seamlessly transitions between spaces. -
Create Engaging Spaces of Discovery
Use contrasting heights, colours, and textures among plants, stones, and interior designs to create engaging spaces of discovery that hold attention and invite exploration. -
Additional Considerations for Successful Internal Courtyards
It's also essential to consider growing conditions, plant selections, and drainage conditions to ensure that the internal greenery thrives and does not outgrow the space. Proper planning and early consideration of these factors can make the installation of an internal courtyard smoother and more cost-effective.
An Increasingly Popular Design Feature in Modern Homes
Internal courtyards are a practical and beautiful addition to modern homes, providing light, privacy, tranquillity, and style, making them a popular choice for homeowners in Australia. They are a timeless architectural feature that can serve multiple purposes, from a quiet retreat to a spacious entertainment area. They also bring natural elements into urban environments, promoting balance, wellness, and sustainability. As we continue to live in a fast-paced world, the return of internal courtyards in modern homes is a welcome development that benefits both the homeowner and the environment.

Design and Construct with Hall & Hart
It’s the little things that make a difference when you choose to build with Hall & Hart.
Years of experience understanding how Australians live has taught us to think beyond functional elements of planning and construction; to factor in things you can’t necessarily see but you can always feel; the things that make the most difference to building – and living in – your brand new home.
It’s our full-service design team of architects, landscape architects, lighting specialists and interior designers who optimise your home unique to your household and lifestyle. It’s our attention to detail, the ‘nice to haves’ that is the Hall & Hart difference, and we welcome you to discover it for yourself.
