Discover a New Hall & Hart Provincial Facade
Without a doubt, the Provincial style is elegant and charming. Beautiful old architecture from yesteryear where symmetry and proportion are key elements in this classic style, as are decorative elements such as porticos, moudlings and columns.
The Provincial façade is ideal for those looking for a classic look to their home and well suited to wide, tree-lined suburban streets to complement existing residences in the neighbourhood.
Hall and Hart’s resident building designer designed this new façade with consideration and attention to every detail including mouldings to highlight and embellish different parts of this stunning, classic Provincial façade.
The central portico is the main feature with an emphasis on the entry to the house which provides a welcoming enclave to visitors and residents alike. The quoins to the corners add the feeling of strength and permanency to the house while adding decorative elements to the corners of the façade.

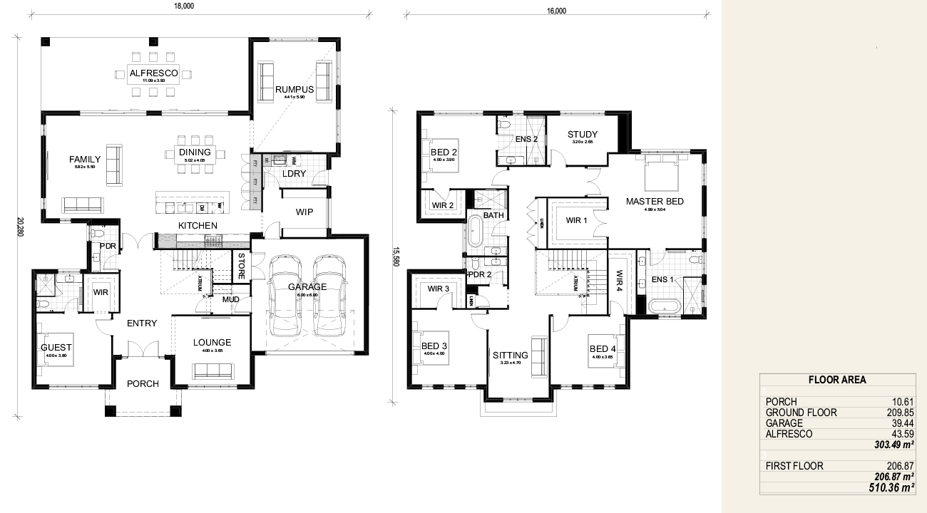
The Floor Plan
Designed for Sydney-based families who desire a large, spacious family home, flooded with natural light with different living areas to live, retreat and retire to. The Ascot 55W easily complements 21m+ frontages.
Design features include:
-
3m wide grand entry hallway
-
Oversized kitchen with 4m long island bench
-
Large double garage with storage space and access to both mud and pantry
-
Bathrooms and powder rooms all feature windows
-
Grand staircase with large void large enough to accomodate a lift or wine cellar in the future
-
Option to increase ceiling height to 4m in rumpus room
-
Grand alfresco, an entertainer’s delight
-
Option to change first-floor study to double WIR (his and her robes) to master
-
Oversized rooms with ample storage
Beautiful homes are more than bricks and mortar. It’s the spaces that connect, that work. The absence of interruption. Good design is invisible. Style, tangible. A natural flow, a considered aspect, a productive day, a successful dinner party, a quiet space…
A simple elegant detail you live with every day that maybe no one else notices. A coming together of all your ideas into one unique, living, breathing home.
Hall&Hart – Bringing your home to life.

