Designing a home that takes full advantage of a block's potential is a hallmark of Hall & Hart, luxury custom builders.
Designing on Sloping Blocks with Hall & Hart
When it comes to designing homes, sloping blocks offer a remarkable starting point for creating something genuinely distinctive and captivating. While building on difficult sites may be perceived as challenging and potentially more expensive, it presents an extraordinary opportunity to craft a home that is perfectly tailored to the block's characteristics and showcases a truly unique design.
Intensive Site Planning and Design Considerations
Constructing a home on a slope demands meticulous site planning and design considerations. Our design team understand the unique requirements of sloping block builds and is committed to assisting you in comprehending how to make a sloping block home design work for your specific needs. Our experienced team will collaborate closely with you to develop innovative solutions that maximise the potential of your site while seamlessly integrating your desired design elements.
Planning and Design Project Highlight: Slope to Front
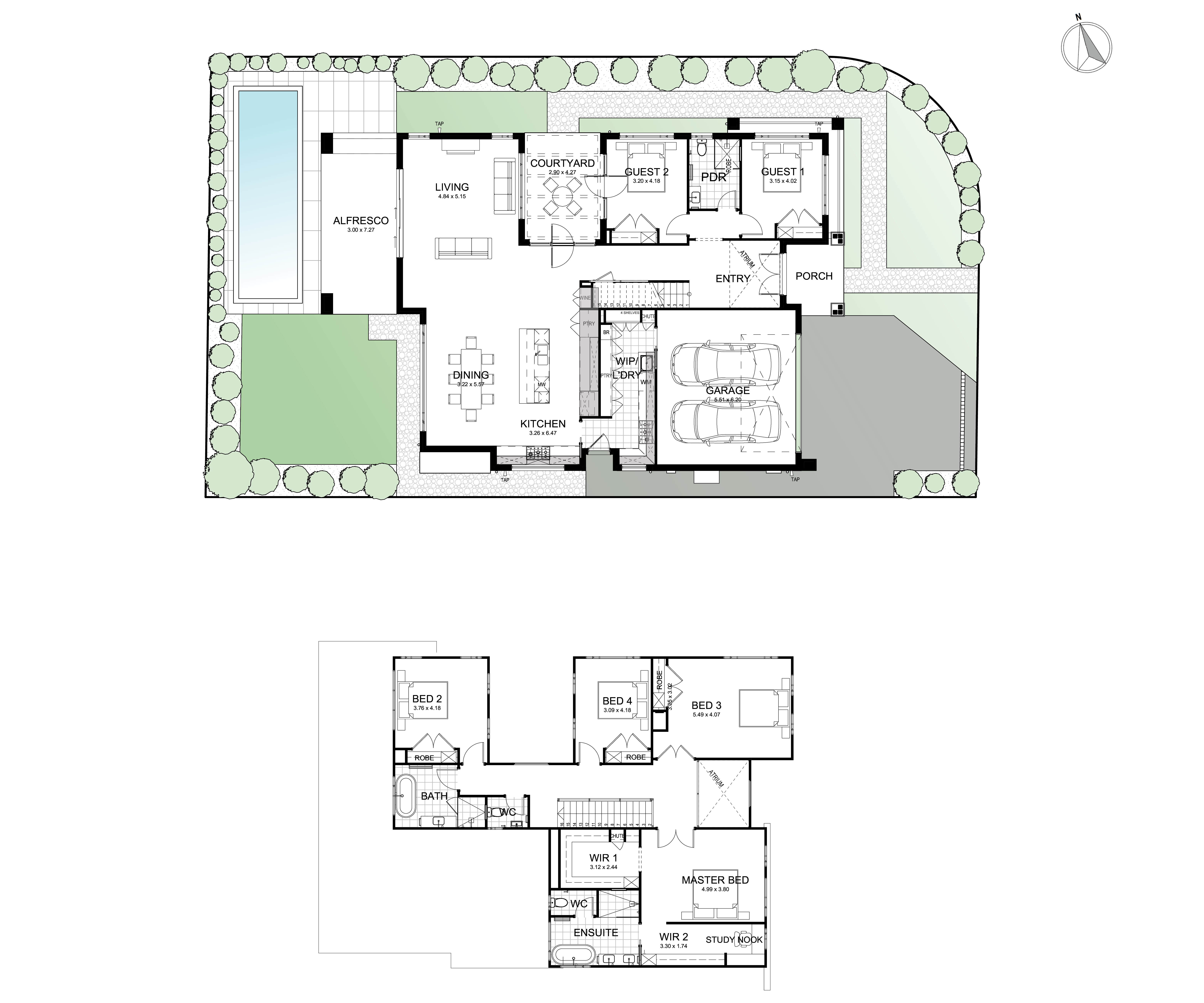
The design of this home was meticulously tailored to accommodate various factors that influenced its layout and functionality. The positioning of the sewer on the block had a significant impact on the house's footprint, resulting in a stepped design that aligned with the sewer line. This thoughtful adjustment ensured efficient plumbing and maximised the use of available space. Additionally, the location of the driveway was determined by the easement, emphasising the need for proper planning and adherence to property boundaries.

To capitalise on the block's slope and create a grand entrance, the front of the house was elegantly stepped down. This decision not only added visual appeal but also harmoniously integrated the home with the natural topography. With an approximate 2.2-meter difference from the back boundary to the front, this design element created a striking and welcoming entry point for residents and visitors alike.
One of the most captivating aspects of the ground floor plan was the area connecting the garage, mudroom, butler's pantry, and kitchen. At the client's request, this section was designed to provide direct access from the garage, allowing for seamless transitions between the various spaces, practicality and fostering an efficient flow of movement throughout the home. The careful consideration given to this area showcases the meticulous attention to detail and commitment to fulfilling the client's specific needs.
Another unique request from the client was to have all three bedrooms of equal size. This unconventional design choice demonstrates the dedication to symmetry and balance, resulting in a harmonious living environment for family members or guests. The uniformity in bedroom sizes reflects a desire for equality and ensures that everyone enjoys comparable comfort and amenities, showcasing the client's vision of an inclusive and harmonious living space.

Sloping Block Home Designs Shouldn't Come with Compromise.
Often seen as a challenge and more expensive to build, designing your dream home for a sloping block of land does come with hurdles, but there is also a lot to gain once your home is completed.
When designing and building on a sloping block, the primary consideration will be how to make your living zones comfortable without too many split levels or steps. This can be a challenge - especially if your home builder isn't familiar with sloping home designs or if they don't have flexibility with their range of homes.
Building on a slope requires intensive site planning and design consideration and as sloping block builders, we are here to help you understand how to make a sloping block home design work for you.
Related Content
