In contemporary home design, there's an ever-evolving narrative that reflects the shifts in societal structures and family dynamics. One such trend gaining momentum is the concept of intergenerational living - where tradition meets innovation to create spaces that resonate with the diverse needs and aspirations of modern families.
It's not just about accommodating aging parents; it's about creating spaces where multiple generations can coexist harmoniously, nurturing connectivity, support, and shared experiences. As we navigate through this evolving landscape, it becomes increasingly evident that our homes need to adapt to cater to the diverse needs of families.
Embracing the Evolution of Intergenerational Living
Traditionally, the concept of intergenerational living is often images of elderly parents moving in with their adult children. While this scenario certainly remains relevant, there's a broader spectrum to consider.
Modern families are embracing intergenerational living for various reasons, including factors like finances, cultural traditions, and a longing for stronger family ties. This shift underscores the importance of floor plans that cater not only to aging parents but also to older teenagers and young adults who opt to remain at home for extended periods. Whether pursuing further education, career goals, or simply due to the current housing market challenges, where obtaining finances for a home seems unattainable, the demand for adaptable living spaces continues to grow.
So, what elements should be considered when designing floor plans for intergenerational living?
Flexibility and Accessibility
One of the fundamental aspects of intergenerational floor plans is flexibility. Spaces should be adaptable to accommodate changing needs over time. This includes incorporating features like ground-floor bedrooms and bathrooms for elderly parents who may have mobility issues. Additionally, ensuring accessibility throughout the home with wider doorways, ramps, and lever-style door handles can enhance the overall functionality and inclusivity.
Designing intergenerational floor plans also requires alignment with the trend of younger adults staying at home longer with the likes of multiple office/study/retreat areas, alongside forward-thinking considerations for potential future grandchildren residing within the household.

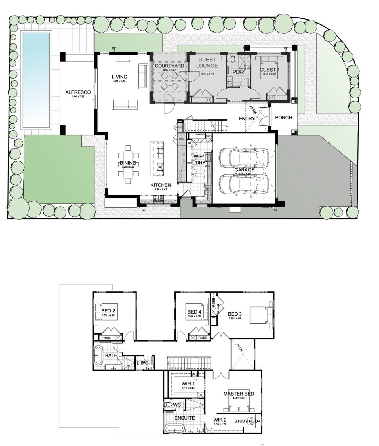
Custom Plan FP144
Privacy with Connectivity
Balancing privacy with connectivity is crucial in intergenerational living arrangements. Designing separate living areas or private suites can provide autonomy while still fostering a sense of togetherness. Similarly, creating spaces where older teenage children can have their independence while remaining connected to the family unit is essential. This could involve designing self-contained studio apartment or loft-style bedrooms with en-suite bathrooms.
Shared Spaces for Bonding
While privacy is essential, so too is the creation of shared spaces where family members can come together to bond and interact. A well-designed kitchen and dining area can serve as the heart of the home, encouraging family meals and conversations. Internal courtyards and outdoor living spaces can also provide opportunities for relaxation and communal activities.

Custom Plan FP138
Multifunctional Design
Embracing a multifunctional design philosophy can maximise the utility of space within intergenerational homes. Rooms and areas that can serve dual purposes, such as a home office that can convert into a home business or a media room that doubles as a study area allow for versatility in how spaces are utilised. This adaptability is particularly beneficial in accommodating the evolving needs of both aging parents and older teenage children.
In an era where more individuals are working from home and running businesses from their residences, it is imperative to consider the possibility of establishing separate spaces within the household that can fulfill both residential and business functions. This strategy not only fosters multifunctionality in homes but also caters to the diverse activities and requirements of various generations living together. By integrating designated business areas households can effectively generate income from within their living environment, thereby enhancing the practicality of home design.
Future-Proofing
Anticipating future needs is paramount when designing intergenerational floor plans. Incorporating features that support aging in place ensures that the home remains functional and safe for elderly occupants. Similarly, integrating technology that enhances comfort, security, and energy efficiency can future-proof the home for generations to come.
Creating Inclusive Spaces for Modern Families
The shift towards intergenerational living necessitates a reimagining of traditional floor plans to cater to the diverse needs of modern families. By prioritising flexibility, accessibility, privacy, shared spaces, multifunctional design, and future-proofing, architects and designers can create homes that accommodate aging parents and older teenage children alike, fostering inclusivity, connectivity, and harmony within the family unit. As we continue to evolve, our homes must evolve with us, serving as the foundation for meaningful intergenerational relationships and experiences.
Get in contact with our design team to discuss crafting your intergenerational living space.
Related Content
Hall and Hart: Custom Home Designs
Hall & Hart: Custom Floor Plan Gallery
Hall & Hart: Custom Build Guide 101
Hall & Hart: Ageing in Place Design